Seehusen Biler har mange års erfaring med salg og service af Skoda.
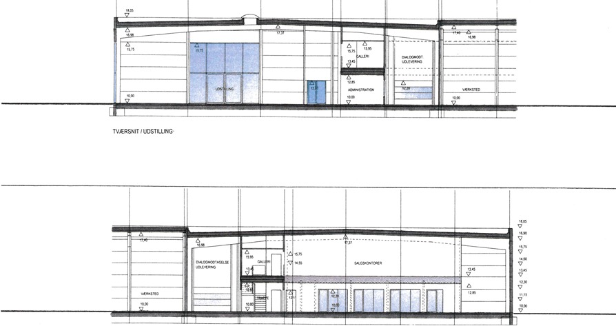
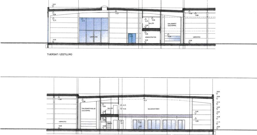
For Seehusen Biler er det vigtigt, at kunderne altid får en god oplevelse i forretningen. Den nye bygning på over 2.500 m2 giver bedre mulighed for at servicere kunderne, når de besøger Skoda -Helsinge for at kigge på biler og udstyr, prøve den nyeste Skoda eller har bilen til service.
| Bygherre: | Seehusen Biler |
| Bygherrerådgivning: | Zethner Byggerådgivning ApS |
| Total entreprenør: | Arne Andersen – Vrå |

Jesper Zethner er siden vores første projekt sammen blevet skolens gennemgående figur i forbindelse med større eller mindre renoveringer eller udbygninger. Han er god til at skabe tryghed, når vi står som ansvarlige for avancerede byggeprojekter – enhver problemstilling bliver håndteret og løst. Og så har han rigtig god forstand på, hvilke ideer og løsninger, der kan bidrage til et bedre liv på en skole
Søren Hansen, Skoleleder
Jesper er utroligt dygtig til at få budgetterne til at holde – han forstår skolernes økonomiske begrænsninger og får det til at lykkes. Han er ærlig og åben og skaber stor tryghed. Han har et meget vindende væsen, og er både teknisk dygtig og rigtig god til at styre de mange processer og involverede. Jeg har flere gange anbefalet ham varmt til mit netværk og har selv brugt ham til flere projekter.
Bjørn GodtHansen, tidl. Skoleleder
Jeg er skoleleder – ikke bygherre, så jeg erkendte behovet for rådgivning. Jesper Zethner sikrede mig fuldstændig tryghed under projektet, styrede tiden og økonomien 100% og skaffede håndværkere, der kunne omgås børn og som faktisk var helt hyggelige at have gående! Der var stor respekt om Jespers arbejde, også hos vores bestyrelse, der bl.a. bestod af flere fagfolk, som var åbenlyst benovede over, hvad han kunne få til at lykkes
Trine Nielsen, Skoleleder
Når vi investerer i udlejnings ejendomme, er det vigtigt at istandsættelse og boligforbedringer lever op til de højeste standarder, tidsplaner og økonomi er naturligvis også vigtige faktorer. Med valget af Zethner Byggerådgivning har vi sikkerhed for at kvalitet er i top og budget og tidsplan bliver overholdt.
— Jesper Vissing
Vi kan varmt anbefale Jesper, hvis I skal have renoveret eller opført nyt byggeri. Vi brugte Jesper i forbindelse med renovering af lade. Alle vores ønsker blev indfriet og tidsplan blev overholdt. Selv med kompleksiteten i at omdanne en gammel staldbygning fra 1847 til et moderne funktionelt hus, blev løst til vores fulde tilfredshed, grundet Jespers evne til at se muligheder og få dem gennemført.
— Steen og Mette
Med et stort antal udlejnings ejendomme ar det vigtigt at kunne overlade istandsættelse og vedligehold til en kompetent og troværdig samarbejdspartner. Vi bruger med succes Zethner Byggerådgivning der både styrer økonomi og valg af håndværker.
— Mads Pedersen